แบบบ้านชั้นเดียว 3ห้องนอน 2ห้องน้ำ 2จอดรถ [แบบบ้านดีดีรักษ์ดิน-3]
แบบบ้านดีดีรักษ์ดิน-3 กระทรวงพลังงาน
รับสร้างบ้านหาดใหญ่ ด้วยวัสดุคุณภาพ โดยวิศวกร 081-540-8650
ออกแบบบ้าน, เขียนแบบบ้าน, เอกสารยื่นกู้ธนาคาร,
แบบก่อสร้างยื่นเทศบาล,แบบ
บ้านสำเร็จรูป,รับสร้างบ้านหาดใหญ่และจังหวัดใกล้เคียง
ออกแบบบ้าน, เขียนแบบบ้าน, เอกสารยื่นกู้ธนาคาร, แบบก่อสร้างยื่นเทศบาล,แบบ
บ้านสำเร็จรูป,รับสร้างบ้านหาดใหญ่และจังหวัดใกล้เคียง
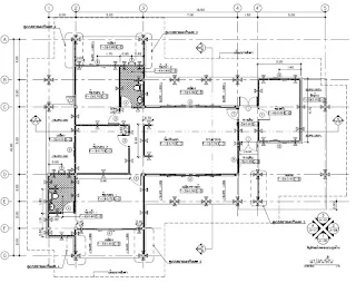
รายละเอียดของบ้าน
ขนาดตัวบ้าน กว้าง 20.50 ม. x ยาว 16.0 ม.
ขนาดที่ดิน กว้าง 24.80 ม. x ยาว 20.40 ม.
พื้นที่ใช้สอย 226 ตร.ม
ติดต่อสอบถามรายละเอียดเพิ่มเติม
บริการออกแบบและก่อสร้าง
บริการออกแบบเขียนแบบบ้านตามงบประมาณ
แบบบ้านที่เหมาะสมให้เลือกตามขนาดของที่ดิน
บริการปรับแก้แบบบ้านตามขนาดของที่ดิน
บริการเขียนแบบบ้าน 3D ก่อนสร้าง
บริการเขียนแบบตามความต้องการของลูกค้า
บริการเขียนแบบดำเนินการขออนุญาตปลูกสร้าง
สร้างบ้านด้วยวัสดุคุณภาพ SCG (ตราช้าง)
สร้างบ้านตามมาตรฐานกรมโยธา
รับสร้างบ้านด้วยวัสดุคุณภาพ มาตรฐานกรมโยธา
ระยะเวลาการก่อสร้างเป็นไปตามรูปแบบที่กำหนด
ประกันผลงานหลังการก่อสร้าง
ให้คำปรึกษาประเมินเพื่อขอสินเชื่อ
บริการงานต่อเติมและรีโนเวท
งานต่อเติมบ้าน เพิ่มพื้นที่ใช้สอย ปรับปรุงบ้าน
งานรีโนเวทบ้าน ปรับปรุงบ้านเก่า เปลี่ยนสไตล์บ้าน
งานรื้อทุบอาคาร


