บ้านชั้นเดียวสไตล์นอร์ดิก 1ห้องนอน 1ห้องน้ำ [บ้านผู้สูงวัยขนาดใหญ่-3]


บ้านผู้สูงวัยชั้นเดียว 1ห้องนอน1ห้องเอนกประสงค์1ห้องน้ำ

บ้านชั้นเดียวสไตล์นอร์ดิก 1ห้องนอน 1ห้องอเนกประสงค์ 1ห้องน้ำ

บ้านอยู่ดีวิถีใหม่ บ้านผู้สูงอายุ(ขนาดใหญ่) โดยกระทรวงมหาดไทย

รับสร้างบ้านหาดใหญ่ ด้วยวัสดุคุณภาพ โดยวิศวกร 081-540-8650

ออกแบบบ้าน, เขียนแบบบ้าน, เอกสารยื่นกู้ธนาคาร, แบบก่อสร้างยื่นเทศบาล,แบบ

บ้านสำเร็จรูป,รับสร้างบ้านหาดใหญ่และจังหวัดใกล้เคียง

รายละเอียดของบ้าน

ขนาดตัวบ้าน กว้าง 7.5 ม. x ยาว 12.0 ม.

ขนาดที่ดิน กว้าง 11.50 ม. x ยาว 16.0 ม.

พื้นที่ใช้สอย 90 ตร.ม

ติดต่อสอบถามรายละเอียดเพิ่มเติม




บ้านผู้สูงวัยชั้นเดียว 1ห้องนอน1ห้องเอนกประสงค์1ห้องน้ำ
ขนาดที่ดิน

บ้านผู้สูงวัยชั้นเดียว 1ห้องนอน1ห้องเอนกประสงค์1ห้องน้ำ

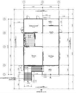
แปลนชั้นล่าง
บ้านผู้สูงวัยชั้นเดียว 1ห้องนอน1ห้องเอนกประสงค์1ห้องน้ำ
แปลนหลังคา


บริการออกแบบและก่อสร้าง

บริการออกแบบเขียนแบบบ้านตามงบประมาณ

แบบบ้านที่เหมาะสมให้เลือกตามขนาดของที่ดิน

บริการปรับแก้แบบบ้านตามขนาดของที่ดิน

บริการเขียนแบบบ้าน 3D ก่อนสร้าง

บริการเขียนแบบตามความต้องการของลูกค้า

บริการเขียนแบบดำเนินการขออนุญาตปลูกสร้าง

สร้างบ้านด้วยวัสดุคุณภาพ SCG (ตราช้าง)

สร้างบ้านตามมาตรฐานกรมโยธา

รับสร้างบ้านด้วยวัสดุคุณภาพ มาตรฐานกรมโยธา

ระยะเวลาการก่อสร้างเป็นไปตามรูปแบบที่กำหนด

ประกันผลงานหลังการก่อสร้าง

ให้คำปรึกษาประเมินเพื่อขอสินเชื่อ

บริการงานต่อเติมและรีโนเวท

งานต่อเติมบ้าน เพิ่มพื้นที่ใช้สอย ปรับปรุงบ้าน

งานรีโนเวทบ้าน ปรับปรุงบ้านเก่า เปลี่ยนสไตล์บ้าน

งานรื้อทุบอาคาร

DOWNLOADแบบบ้าน






[01] บ้านชั้นเดียวสไตล์โมเดิร์น 2ห้องนอน 1ห้องน้ำ

[01] บ้านล้อมสวน

[04] บ้าน A GOOD FRIEND

[05] บ้านกฤษฏา

[06] บ้านTINY HOUSE


ใหม่กว่า เก่ากว่า