บ้านชั้นเดียว 2 ห้องนอน 2 ห้องน้ำ [บ้านห่วงใยประชาชน-1]
โครงการแบบบ้านเพื่อประชาชน สำนักงานการโยธา กระทรวงมหาดไทย
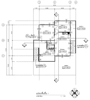
บ้านชั้นเดียว 2 ห้องนอน 2 ห้องน้ำ
รับสร้างบ้านหาดใหญ่ ด้วยวัสดุคุณภาพ โดยวิศวกร 081-540-8650
ออกแบบบ้าน, เขียนแบบบ้าน, เอกสารยื่นกู้ธนาคาร,
แบบก่อสร้างยื่นเทศบาล,แบบ
บ้านสำเร็จรูป,รับสร้างบ้านหาดใหญ่และจังหวัดใกล้เคียง
ออกแบบบ้าน, เขียนแบบบ้าน, เอกสารยื่นกู้ธนาคาร, แบบก่อสร้างยื่นเทศบาล,แบบ
บ้านสำเร็จรูป,รับสร้างบ้านหาดใหญ่และจังหวัดใกล้เคียง
รายละเอียดของบ้าน
ขนาดบ้าน กว้าง 11.0 ม. x ยาว 11.0 ม.
ขนาดที่ดินอย่างน้อย : กว้าง 16.10 ม. x ลึก 18.1 ม.
พื้นที่ใช้สอยภายใน 80 ตร.ม
จำนวน 2 ห้องนอน 2 ห้องน้ำ
ห้องโถง,ห้องครัว,ระเบียงหน้า,ส่วนซักล้าง
งบประมาณการก่อสร้าง
1.0 ล้านบาท(ขึ้นอยู่กับพื้นที่ก่อสร้าง)
สนใจแบบบ้านติดต่อสอบถามรายละเอียดเพิ่มเติม
Tel : 081-540-8650
Line ID :http://line.me/ti/p/~thanabkk
บริการออกแบบและก่อสร้าง
บริการออกแบบเขียนแบบบ้านตามงบประมาณ
แบบบ้านที่เหมาะสมให้เลือกตามขนาดของที่ดิน
บริการปรับแก้แบบบ้านตามขนาดของที่ดิน
บริการเขียนแบบบ้าน 3D ก่อนสร้าง
บริการเขียนแบบตามความต้องการของลูกค้า
บริการเขียนแบบดำเนินการขออนุญาตปลูกสร้าง
สร้างบ้านด้วยวัสดุคุณภาพ SCG (ตราช้าง)
สร้างบ้านตามมาตรฐานกรมโยธา
รับสร้างบ้านด้วยวัสดุคุณภาพ มาตรฐานกรมโยธา
ระยะเวลาการก่อสร้างเป็นไปตามรูปแบบที่กำหนด
ประกันผลงานหลังการก่อสร้าง
ให้คำปรึกษาประเมินเพื่อขอสินเชื่อ
บริการงานต่อเติมและรีโนเวท
งานต่อเติมบ้าน เพิ่มพื้นที่ใช้สอย ปรับปรุงบ้าน
งานรีโนเวทบ้าน ปรับปรุงบ้านเก่า เปลี่ยนสไตล์บ้าน
งานรื้อทุบอาคาร





