บ้านครอบครัวไทยเป็นสุข5
บ้านสองชั้น 3 ห้องนอน 3ห้องน้ำ 1 จอดรถ หลังคาทรงปั้นหยา
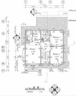
ลักษณะบ้าน : บ้านสองชั้น 3 ห้องนอน 3 ห้องน้ำ 1 จอดรถ
ขนาดตัวบ้าน : กว้าง 8.70 เมตร ยาว 11.4 เมตร
ขนาดที่ดิน : กว้าง 14.0 เมตร ยาว 18.0 เมตร
พื้นที่ใช้สอย : 170 ตารางเมตร
สอบถามรายละเอียดเพิ่มเติม
แปลนหลังคา
รับสร้างบ้านหาดใหญ่ ด้วยวัสดุคุณภาพ โดยวิศวกร 081-540-8650
ออกแบบบ้าน, เขียนแบบบ้าน, เอกสารยื่นกู้ธนาคาร,
แบบก่อสร้างยื่นเทศบาล,แบบ
บ้านสำเร็จรูป,รับสร้างบ้านหาดใหญ่และจังหวัดใกล้เคียง
ออกแบบบ้าน, เขียนแบบบ้าน, เอกสารยื่นกู้ธนาคาร, แบบก่อสร้างยื่นเทศบาล,แบบ
บ้านสำเร็จรูป,รับสร้างบ้านหาดใหญ่และจังหวัดใกล้เคียง
บริการออกแบบและก่อสร้าง
บริการออกแบบเขียนแบบบ้านตามงบประมาณ
แบบบ้านที่เหมาะสมให้เลือกตามขนาดของที่ดิน
บริการปรับแก้แบบบ้านตามขนาดของที่ดิน
บริการเขียนแบบบ้าน 3D ก่อนสร้าง
บริการเขียนแบบตามความต้องการของลูกค้า
บริการเขียนแบบดำเนินการขออนุญาตปลูกสร้าง
สร้างบ้านด้วยวัสดุคุณภาพ SCG (ตราช้าง)
สร้างบ้านตามมาตรฐานกรมโยธา
รับสร้างบ้านด้วยวัสดุคุณภาพ มาตรฐานกรมโยธา
ระยะเวลาการก่อสร้างเป็นไปตามรูปแบบที่กำหนด
ประกันผลงานหลังการก่อสร้าง
ให้คำปรึกษาประเมินเพื่อขอสินเชื่อ
บริการงานต่อเติมและรีโนเวท
งานต่อเติมบ้าน เพิ่มพื้นที่ใช้สอย ปรับปรุงบ้าน
งานรีโนเวทบ้าน ปรับปรุงบ้านเก่า เปลี่ยนสไตล์บ้าน
งานรื้อทุบอาคาร
