บ้านชั้นเดียว 1 ห้องนอน 1 ห้องน้ำ [บ้านโพธิ์กวักเงิน 04]
โครงการแบบบ้านเพื่อประชาชน สำนักงานการโยธา กทม.
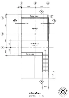
รายละเอียดของบ้าน
ขนาดตัวบ้าน กว้าง 5.0 ม. x ลึก 11.70 ม.
ขนาดที่ดิน กว้าง 9.50 ม. x ลึก 13.50 ม.
พื้นที่ใช้สอยภายใน 56 ตารางเมตร
ส่วนประกอบของบ้าน ระเบียงหน้า,ห้องรับแขก,ห้องครัวและส่วนซักล้าง
งบประมาณการก่อสร้าง
0.7 ล้านบาท (ขึ้นอยู่กับพื้นที่ก่อสร้าง)
tel : 081-540-8650
Line ID :http://line.me/ti/p/~thanabkk
รับสร้างบ้านหาดใหญ่ ด้วยวัสดุคุณภาพ โดยวิศวกร 081-540-8650
ออกแบบบ้าน, เขียนแบบบ้าน, เอกสารยื่นกู้ธนาคาร,
แบบก่อสร้างยื่นเทศบาล,แบบ
บ้านสำเร็จรูป,รับสร้างบ้านหาดใหญ่และจังหวัดใกล้เคียง
ออกแบบบ้าน, เขียนแบบบ้าน, เอกสารยื่นกู้ธนาคาร, แบบก่อสร้างยื่นเทศบาล,แบบ
บ้านสำเร็จรูป,รับสร้างบ้านหาดใหญ่และจังหวัดใกล้เคียง
บริการออกแบบและก่อสร้าง
บริการออกแบบเขียนแบบบ้านตามงบประมาณ
แบบบ้านที่เหมาะสมให้เลือกตามขนาดของที่ดิน
บริการปรับแก้แบบบ้านตามขนาดของที่ดิน
บริการเขียนแบบบ้าน 3D ก่อนสร้าง
บริการเขียนแบบตามความต้องการของลูกค้า
บริการเขียนแบบดำเนินการขออนุญาตปลูกสร้าง
สร้างบ้านด้วยวัสดุคุณภาพ SCG (ตราช้าง)
สร้างบ้านตามมาตรฐานกรมโยธา
รับสร้างบ้านด้วยวัสดุคุณภาพ มาตรฐานกรมโยธา
ระยะเวลาการก่อสร้างเป็นไปตามรูปแบบที่กำหนด
ประกันผลงานหลังการก่อสร้าง
ให้คำปรึกษาประเมินเพื่อขอสินเชื่อ
บริการงานต่อเติมและรีโนเวท
งานต่อเติมบ้าน เพิ่มพื้นที่ใช้สอย ปรับปรุงบ้าน
งานรีโนเวทบ้าน ปรับปรุงบ้านเก่า เปลี่ยนสไตล์บ้าน
งานรื้อทุบอาคาร
![บ้านชั้นเดียว 1 ห้องนอน 1 ห้องน้ำ บ้านชั้นเดียว 1 ห้องนอน 1 ห้องน้ำ [บ้านโพธิ์กวักเงิน 04]](https://blogger.googleusercontent.com/img/b/R29vZ2xl/AVvXsEj5fjp67Tqi_XjJyKJIC5ZYb_PUsE_KFom1cs1y-4xDs2JNkCO-c-S89QHuOOGjRj3pxI0usWHXb1R_JWW7tQR3bmWzj_E-491QyS6fbhIaE6TDUskOvPbBotVmvvYfoH_wjAtJGnrJsnVvk8d9oqXKA43iMxjJRnOhXLWh2qhoKVGrso95LWs29Nd-5Fg/w320-h249-rw/per-1%E0%B8%AB%E0%B9%89%E0%B8%AD%E0%B8%87%E0%B8%99%E0%B8%AD%E0%B8%991%E0%B8%AB%E0%B9%89%E0%B8%AD%E0%B8%87%E0%B8%99%E0%B9%89%E0%B8%B3-%E0%B8%9A%E0%B9%89%E0%B8%B2%E0%B8%99%E0%B8%81%E0%B8%A7%E0%B8%B1%E0%B8%81%E0%B9%82%E0%B8%9E%E0%B8%98%E0%B8%B4%E0%B9%8C%E0%B9%80%E0%B8%87%E0%B8%B4%E0%B8%9904-.jpg)
![บ้านชั้นเดียว 1 ห้องนอน 1 ห้องน้ำ บ้านชั้นเดียว 1 ห้องนอน 1 ห้องน้ำ [บ้านโพธิ์กวักเงิน 04]](https://blogger.googleusercontent.com/img/b/R29vZ2xl/AVvXsEjWt348HFBFYxaAlTAWxVlk6EAnDt-Cd3mZDNEAW-rIHBDma07GA9tWQmxJgHEIOuMSspByx9PW4BpTCAUrYB_mQ0RBdgvrYMdjC4I1I8i54nmHi4_u3R_AwLCZR51apWVUpz7rJHHXC4FJNTKnPc0GcjxZwVB8wW78K_FybHZ5m6FBf07riiZxBz5k0uk/w192-h320-rw/%E0%B9%81%E0%B8%9B%E0%B8%A5%E0%B8%99%E0%B8%9E%E0%B8%B7%E0%B9%89%E0%B8%99-1%E0%B8%AB%E0%B9%89%E0%B8%AD%E0%B8%87%E0%B8%99%E0%B8%AD%E0%B8%991%E0%B8%AB%E0%B9%89%E0%B8%AD%E0%B8%87%E0%B8%99%E0%B9%89%E0%B8%B3-%E0%B8%9A%E0%B9%89%E0%B8%B2%E0%B8%99%E0%B8%81%E0%B8%A7%E0%B8%B1%E0%B8%81%E0%B9%82%E0%B8%9E%E0%B8%98%E0%B8%B4%E0%B9%8C%E0%B9%80%E0%B8%87%E0%B8%B4%E0%B8%9904-.jpg)
![บ้านชั้นเดียว 1 ห้องนอน 1 ห้องน้ำ บ้านชั้นเดียว 1 ห้องนอน 1 ห้องน้ำ [บ้านโพธิ์กวักเงิน 04]](https://blogger.googleusercontent.com/img/b/R29vZ2xl/AVvXsEie5YJY3lE3Q_hM5RREqeKE07yHjcK_al20wcEqreDMK4N_ht6wudLeGcaM5uM2exbUaEOkwMM1SKfQn-Pt2nVhvU4djvAEP4ymj4Opu1Avjn9QTCUAbxvCeqHeMUZKItCyDp408xQfABfSj7L28kcvwWbO1m02QLMRD0LR0Q0etceprp4XqSysQ7By9e8/w226-h320-rw/%E0%B9%81%E0%B8%9B%E0%B8%A5%E0%B8%99%E0%B8%AB%E0%B8%A5%E0%B8%B1%E0%B8%87%E0%B8%84%E0%B8%B2-1%E0%B8%AB%E0%B9%89%E0%B8%AD%E0%B8%87%E0%B8%99%E0%B8%AD%E0%B8%991%E0%B8%AB%E0%B9%89%E0%B8%AD%E0%B8%87%E0%B8%99%E0%B9%89%E0%B8%B3-%E0%B8%9A%E0%B9%89%E0%B8%B2%E0%B8%99%E0%B8%81%E0%B8%A7%E0%B8%B1%E0%B8%81%E0%B9%82%E0%B8%9E%E0%B8%98%E0%B8%B4%E0%B9%8C%E0%B9%80%E0%B8%87%E0%B8%B4%E0%B8%9904-.jpg)
