บ้านชั้นเดียว 2 ห้องนอน 2 ห้องน้ำ [บ้านดุสิตา30]
โครงการแบบบ้านเพื่อประชาชน สำนักงานการโยธา กทม.
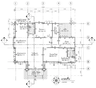
รายละเอียดของบ้าน
ขนาดตัวบ้าน กว้าง 13.0 ม. x ลึก 13.0 ม.
ขนาดที่ดิน กว้าง 20.0 ม. x ลึก 19.0 ม.
พื้นที่ใช้สอยภายใน 205 ตารางเมตร
ส่วนประกอบของบ้าน ระเบียงหน้า,ห้องรับแขก,ห้องครัวและส่วนซักล้าง
งบประมาณการก่อสร้าง
2.4 ล้านบาท (ขึ้นอยู่กับพื้นที่ก่อสร้าง)
tel : 081-540-8650
Line ID :http://line.me/ti/p/~thanabkk
รับสร้างบ้านหาดใหญ่ ด้วยวัสดุคุณภาพ โดยวิศวกร 081-540-8650
ออกแบบบ้าน, เขียนแบบบ้าน, เอกสารยื่นกู้ธนาคาร, แบบก่อสร้างยื่นเทศบาล,แบบ
บ้านสำเร็จรูป,รับสร้างบ้านหาดใหญ่และจังหวัดใกล้เคียง
ออกแบบบ้าน, เขียนแบบบ้าน, เอกสารยื่นกู้ธนาคาร, แบบก่อสร้างยื่นเทศบาล,แบบ
บ้านสำเร็จรูป,รับสร้างบ้านหาดใหญ่และจังหวัดใกล้เคียง
บริการออกแบบและก่อสร้าง
บริการออกแบบเขียนแบบบ้านตามงบประมาณ
แบบบ้านที่เหมาะสมให้เลือกตามขนาดของที่ดิน
บริการปรับแก้แบบบ้านตามขนาดของที่ดิน
บริการเขียนแบบบ้าน 3D ก่อนสร้าง
บริการเขียนแบบตามความต้องการของลูกค้า
บริการเขียนแบบดำเนินการขออนุญาตปลูกสร้าง
สร้างบ้านด้วยวัสดุคุณภาพ SCG (ตราช้าง)
สร้างบ้านตามมาตรฐานกรมโยธา
รับสร้างบ้านด้วยวัสดุคุณภาพ มาตรฐานกรมโยธา
ระยะเวลาการก่อสร้างเป็นไปตามรูปแบบที่กำหนด
ประกันผลงานหลังการก่อสร้าง
ให้คำปรึกษาประเมินเพื่อขอสินเชื่อ
บริการงานต่อเติมและรีโนเวท
งานต่อเติมบ้าน เพิ่มพื้นที่ใช้สอย ปรับปรุงบ้าน
งานรีโนเวทบ้าน ปรับปรุงบ้านเก่า เปลี่ยนสไตล์บ้าน
งานรื้อทุบอาคาร
![บ้านชั้นเดียว 2 ห้องนอน 2 ห้องน้ำ [บ้านดุสิตา30] บ้านชั้นเดียว 2 ห้องนอน 2 ห้องน้ำ [บ้านดุสิตา30]](https://blogger.googleusercontent.com/img/b/R29vZ2xl/AVvXsEhT_H35gLv9_AaPa1ZcXH1tVhwnr4qVcxCsoxVVGwVagaARC8liPCUbv-_S2RbZugfec5P2gUJKBF0bX5E0437PDA9NnWFs-2qo4FMPzZr5Sx6yeA4VG3uN5UJ9lg-SuTpgj-50wZdaOSXyomWo1PIkUHOSOn0Qebw2uWIq6hI_5_1YpqEFNOICHBxwHQU/w320-h250-rw/per-2%E0%B8%AB%E0%B9%89%E0%B8%AD%E0%B8%87%E0%B8%99%E0%B8%AD%E0%B8%992%E0%B8%AB%E0%B9%89%E0%B8%AD%E0%B8%87%E0%B8%99%E0%B9%89%E0%B8%B3-%E0%B8%9A%E0%B9%89%E0%B8%B2%E0%B8%99%E0%B8%94%E0%B8%B8%E0%B8%AA%E0%B8%B4%E0%B8%95%E0%B8%B2030-.jpg)
![บ้านชั้นเดียว 2 ห้องนอน 2 ห้องน้ำ [บ้านดุสิตา30] บ้านชั้นเดียว 2 ห้องนอน 2 ห้องน้ำ [บ้านดุสิตา30]](https://blogger.googleusercontent.com/img/b/R29vZ2xl/AVvXsEhX-sfoJIhWfviJAik_Qs_FWwXgT-PbkPkHZMTuNGt_mPpm8UGcochG35xLFPcF2i6y3smiZmmnG6G37rKWvikfa58C8rS4dlKPK6Wb_WkPrPLO8tu1R22tNgdzaa8EDPUL9_b92cJmg5NULJNZrBf5j4ILe78cV8JCnxK5jk-D9Vmn93YN6mDvOCApxUQ/w308-h320-rw/%E0%B9%81%E0%B8%9B%E0%B8%A5%E0%B8%99%E0%B8%9E%E0%B8%B7%E0%B9%89%E0%B8%992-2%E0%B8%AB%E0%B9%89%E0%B8%AD%E0%B8%87%E0%B8%99%E0%B8%AD%E0%B8%992%E0%B8%AB%E0%B9%89%E0%B8%AD%E0%B8%87%E0%B8%99%E0%B9%89%E0%B8%B3-%E0%B8%9A%E0%B9%89%E0%B8%B2%E0%B8%99%E0%B8%94%E0%B8%B8%E0%B8%AA%E0%B8%B4%E0%B8%95%E0%B8%B2030-.jpg)
![บ้านชั้นเดียว 2 ห้องนอน 2 ห้องน้ำ [บ้านดุสิตา30] บ้านชั้นเดียว 2 ห้องนอน 2 ห้องน้ำ [บ้านดุสิตา30]](https://blogger.googleusercontent.com/img/b/R29vZ2xl/AVvXsEg3jeGoVVFvh4WwB_GFPLX5kgxWwhBqLL7f__Q4h_Tp9GnROhq4EtexN8hihcmp6bW9ed-jSIq9UbOPOZePWyeLSlKYxV6KM3mSbwosowRE99oX4ANOBWGug8H08C333wq6d8MvbcOKcoyoUalEB2uDrAJeLyiWisns_Fx18AB6yzaOBVUF3TNoXKGmOjY/w320-h295-rw/%E0%B9%81%E0%B8%9B%E0%B8%A5%E0%B8%99%E0%B8%9E%E0%B8%B7%E0%B9%89%E0%B8%99-2%E0%B8%AB%E0%B9%89%E0%B8%AD%E0%B8%87%E0%B8%99%E0%B8%AD%E0%B8%992%E0%B8%AB%E0%B9%89%E0%B8%AD%E0%B8%87%E0%B8%99%E0%B9%89%E0%B8%B3-%E0%B8%9A%E0%B9%89%E0%B8%B2%E0%B8%99%E0%B8%94%E0%B8%B8%E0%B8%AA%E0%B8%B4%E0%B8%95%E0%B8%B2030-.jpg)
![บ้านชั้นเดียว 2 ห้องนอน 2 ห้องน้ำ [บ้านดุสิตา30] บ้านชั้นเดียว 2 ห้องนอน 2 ห้องน้ำ [บ้านดุสิตา30]](https://blogger.googleusercontent.com/img/b/R29vZ2xl/AVvXsEj4BnuDjNKFZ50iqXGttya53wE92E2iuvCcTfD5ZvoTglk1catJd75KN7V0o1lciZkEnzkDOQ2kKkd3douncvXkxPqCM-Ry0QqMNEiPVahNpQIOuyq88-pNqcC4Uh2EoncU3w5pz-EFkUd6ex-n4T1eZ9xQk4_VzMgxcbo72iVWlY_IrKckNsyjJ3_87Po/w320-h284-rw/%E0%B9%81%E0%B8%9B%E0%B8%A5%E0%B8%99%E0%B8%AB%E0%B8%A5%E0%B8%B1%E0%B8%87%E0%B8%84%E0%B8%B2-2%E0%B8%AB%E0%B9%89%E0%B8%AD%E0%B8%87%E0%B8%99%E0%B8%AD%E0%B8%992%E0%B8%AB%E0%B9%89%E0%B8%AD%E0%B8%87%E0%B8%99%E0%B9%89%E0%B8%B3-%E0%B8%9A%E0%B9%89%E0%B8%B2%E0%B8%99%E0%B8%94%E0%B8%B8%E0%B8%AA%E0%B8%B4%E0%B8%95%E0%B8%B2030-.jpg)
